免费申请户型规划
1对1全程服务

咨询热线:15846166622

大庆小叶思人影咖

分享到:
|
2018-06-05 16:09:41

案例风格 其它风格 案例户型 商装

案例面积 181-320平米 所在楼盘 大庆小叶思人影咖

设计师:张春雷

级别:高端设计师

空间可小于一点之极,创意却始生于经典之...


作品设计说明:

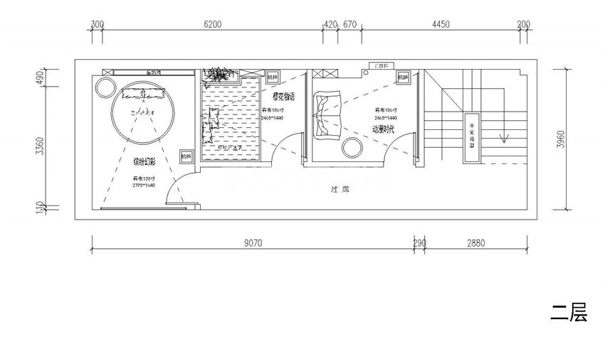
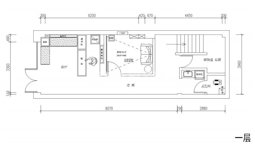
名称:小叶思人影咖

坐落地址:黑龙江省大庆市高新区

项目面积:300平方米

空间性质:娱乐空间

设计单位:幸福人家装饰丨大宅设计中心  

主案设计师:张春雷

设计时间:2016/11

使用材料:铁艺、水泥漆、文化石、老船木、艺术壁画定制

设计主题:色 诱

影咖在近几年时下流行的一种娱乐场所,区别于大众影院,它体现的更多是个性化,私属化。不同风格的定位,打造的影咖环境争奇斗艳,本案主要的设计思路不在风格上做巧取,而是以跳色的手法,融合不同的色彩感官,以赤橙黄绿青蓝紫七大主色为基底,丰富空间层次,让色彩与时尚元素结合,通过材质的传递,在娱乐的同时,感受时尚风华的绽放,每个单间都有属于自己的主题故事,让消费者面对自己不同的年龄,不同的文化层次去体验,不同的认知来享受着视听盛宴!









上一篇解析:合金宾馆

下一篇解析:大同九恒宾馆


免费获取装修报价
手机号码

请准确提交手机号码,报价将通过短信发送至手机