免费申请户型规划
1对1全程服务

咨询热线:15846166622

大同九恒宾馆

分享到:
|
2018-06-05 16:34:12

案例风格 简欧风格 案例户型 商装

案例面积 1000平米以上 所在楼盘 大同九恒宾馆

设计师:张春雷

级别:高端设计师

空间可小于一点之极,创意却始生于经典之...


作品设计说明:

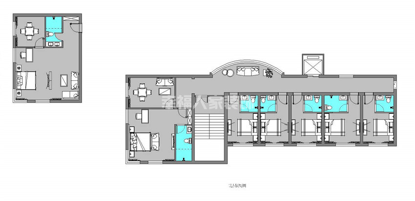
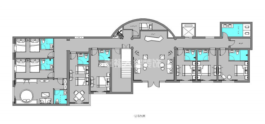
名称:九恒宾馆

坐落地址:黑龙江省大庆市大同区

项目面积:1000平方米

空间性质:商务空间

设计单位:幸福人家装饰丨大宅设计中心  

主案设计师:张春雷

设计时间:2017/04

使用材料:大理石、欧橡、实色混油、壁纸、文化石、乳胶漆等

设计主题:岚 · 屏

未夜青岚入,先秋白露团。

——白居易《题卢秘书夏日新栽竹二十韵》

宾馆在为消费人群提供居住条件同时,不能以牺牲环境为代价,这是宾馆最基本的要求。另一方面,要体现时尚与大气的感觉,就要在整体的设计中始终围绕主题出发,要有超前的设计观念,在符合主题的设计同时要能够引领新的潮流,打造不同的宾馆风格文化。

“岚-屏”一词从字面上理解就是如大山般的雄伟,在波澜壮阔中独享那一份安逸与宁静。宾馆主题不仅是这两个简单的词汇这么简单其实是人性化设计,就是坚持“以人为本”,还要适度张扬个性,并通过多种形式创造出使客人舒心悦目并独具艺术魅力的“作品”。



上一篇解析:大庆小叶思人影咖

下一篇解析:让胡路私人会所


免费获取装修报价
手机号码

请准确提交手机号码,报价将通过短信发送至手机